
We are at your side with advice and support
Design calculations
Site visits & investigations
Party wall services
Structural engineering inspections and reports
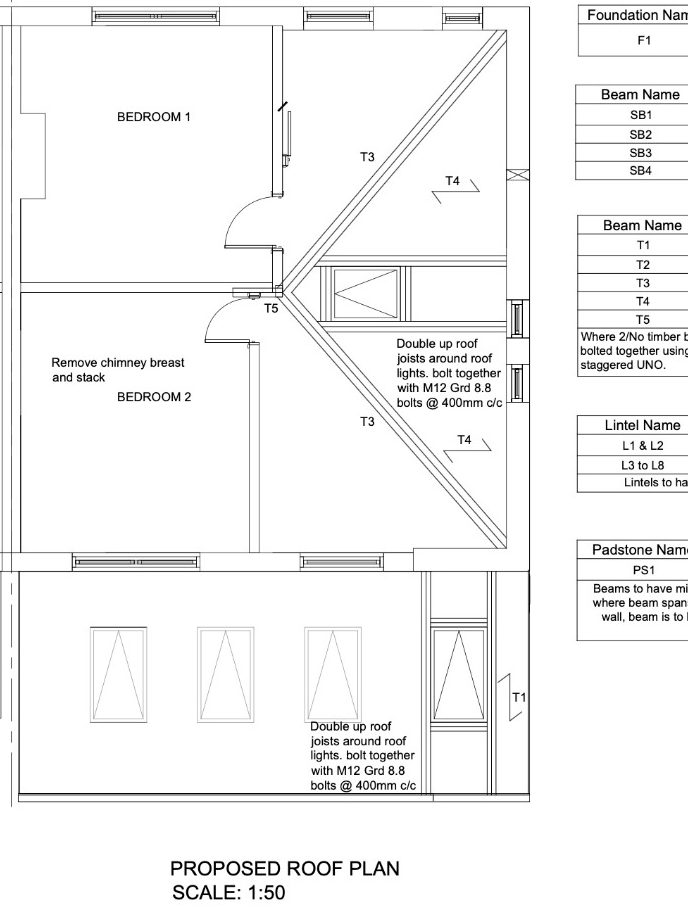
Structural drawings
Accurate, construction-ready structural drawings that guide builders and contractors while ensuring safety, compliance, and efficiency. Our drawings clearly show foundations, beams, slabs, columns, and connections for seamless construction.


Structural calculations
Accurate and reliable structural calculations to ensure buildings and structural elements are safe, compliant, and fit for purpose. Our calculations form the technical foundation of every sound structural design.
Structual detail drawings
Precise structural detail drawings that clearly define how structural elements connect and perform. Our details ensure that design intent is correctly translated into construction, supporting safe, compliant, and efficient builds.

